The Flagstone

  • $143,747
  • 2022 Square Feet

Description

The Flagstone

28×76

Built by Champion Homes

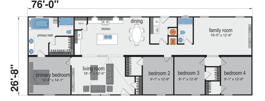
The Flagstone is designed for families who need space to live, gather, and spread out. With four bedrooms and two and a half bathrooms, this thoughtfully arranged layout offers both privacy and multiple living areas for everyday comfort.

At the heart of the home, the kitchen and dining area sit centrally, creating a natural gathering space that connects the entire layout. The spacious living room provides a welcoming front entry focal point, while a separate family room offers additional flexibility—perfect for movie nights, a playroom, or a secondary lounge area.

The private primary suite is positioned on its own end of the home and features a generously sized bedroom, walk-in closet, and an ensuite bath with double sinks, soaking tub, and separate shower. On the opposite side, three additional bedrooms are grouped near a full bath and convenient half bath, making this layout ideal for larger families or guests.

With its dual living spaces, smart bedroom separation, and practical flow, The Flagstone delivers functionality and comfort in a well-balanced design.

 

 

Details

Area : 2022 Square Feet
Price : $143,747

Rooms

Bedrooms : 4
Bathrooms : 2

Attachments

A&L Homes
I consent to have this site collect my Name, Email, and Phone.